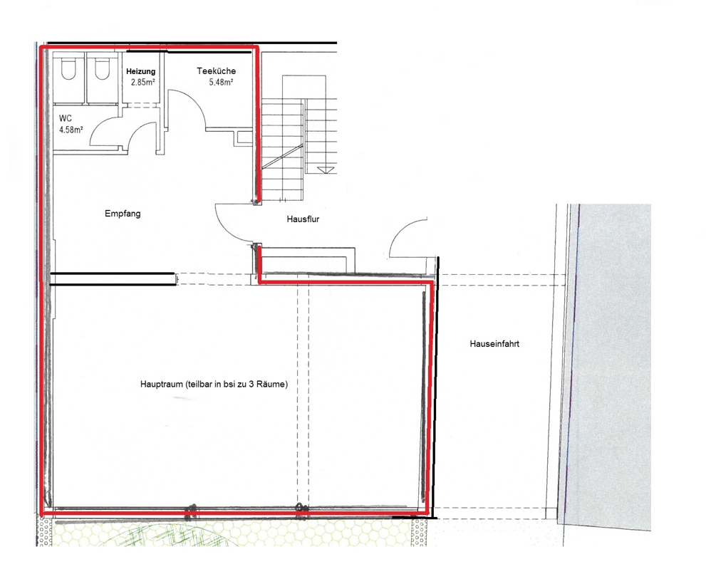
Ein bis drei Räume, Empfang, WC + Teeküche... frisch renoviert extra für Sie!
Beschreibung:
Nahe am Puls der Stadt, und nur wenige hundert Meter von der Frankfurter Messe entfernt, bieten wir Ihnen hier einen Ort für Ihre Unternehmung an. Ob Sie nun einen offenen Bereich oder aber bis zu drei Räume plus Empfangsbereich benötigen - hier können Sie Ihr Geschäft verwirklichen. Diese Immobilie mit neuer Renovierung und neuem Bodenbelag macht's möglich.Eine neu eingerichtete Teeküche und ein WC Bereich mit 2 Plätzen bieten Ihren Kunden und Mitarbeitern ein adäquates Arbeitsumfeld und auch die Lage sorgt für zufriedene Mitarbeitende. Zusätzlich wird auch noch eine neue Heiztherme installiert - das steigert die Energie-Effizienz erheblich.
Gerne sehen wir uns die Immobilie gemeinsam mit Ihnen vor Ort an.
Lagebeschreibung:
Diese Büro- oder Praxisimmobilie bietet eine zentrale Lage mit top Anbindung an den öffentlichen Nahverkehr. Besonders hervorzuheben ist die Nähe zur Frankfurter Messe, die nur wenige Gehminuten entfernt liegt. Die S-Bahn-Station Frankfurt (Main) Galluswarte ist nur etwa 350 Meter entfernt, und die nächste U-Bahn-Station, Frankfurt am Main Messe, erreichen Sie in ca. 525 Metern. Auch die Bushaltestelle Dubliner Straße ist in unmittelbarer Nähe, etwa 110 Meter entfernt.Für Autofahrer sind die Autobahnauffahrten in einer Entfernung von ca. 1,5 bis 2 Kilometern schnell erreichbar, was eine flexible Mobilität gewährleistet. Der Flughafen Frankfurt ist nur etwa 15 Kilometer entfernt.
Die Umgebung bietet eine Vielzahl an Annehmlichkeiten, die sowohl für Mitarbeiter als auch für Kunden attraktiv sind. Sportbegeisterte finden in der Nähe zahlreiche Fitnessstudios wie das Basic-Fit in ca. 165 Metern Entfernung sowie diverse Sportstätten. Für den täglichen Bedarf sind Supermärkte in wenigen Gehminuten erreichbar. Der nahegelegene Park lädt zu entspannten Pausen ein, während zahlreiche Restaurants und Bars in der Umgebung für kulinarische Abwechslung sorgen.
3D Begehung:
3D BegehungAusstattung:
Energieausweis:
- A+
- A
- B
- C
- D
- E
- F
- G
- H
- Baujahr:
- 1964
- Endenergiebedarf:
- 443,6 kWh/(m²a)
- Energieausweis:
- Bedarfsausweis
- Energieeffizienzklasse:
- H
- Energieausweis gültig bis:
- 11.12.2035
- wesentlicher Energieträger:
- Gas
- Baujahr lt. Energieausweis:
- 1964
Ausstattungsbeschreibung:
- Top Lage in Messe Nähe- Gutes Umfeld für Ihre Mitarbeiter
- Bis zu 3 Räume für Ihr Business!
- Ein angenehm dimensionierter Empfangsbereich
- 2 abgetrennte WCs im WC Raum
- Ein kleiner Vorraum zum WC mit Heizung
- 1 Teeküche mit neuen Möbeln
- 1 Kellerraum gehört auch dazu
- Eine neue Gastherme wird noch installiert
Sonstige Angaben:
Achtung: Bitte fragen Sie unbedingt mit vollständigen Kontaktdaten an! Ein paar Informationen über Sie als Mieter sollten Sie bitte im Freitextfeld erfassen.Gerne führen wir gemeinsam mit Ihnen eine Besichtigung durch und stehen Ihnen mit weiteren Informationen jederzeit zur Verfügung.
Für die in diesem Exposé gemachten Angaben können wir leider keine Haftung übernehmen, da sie auf den Angaben der Eigentümer/von Dritten beruhen.
Diese Immobilie bieten wir Ihnen provisionsfrei zur Miete an.
Änderungen der Bedingungen und anderweitige Verwertung behält sich der Eigentümer jederzeit vor.
Sie wollen mehr erfahren?
Wenn Sie uns eine Nachricht über das Kontaktformular senden, melden wir uns schnellstmöglich bei Ihnen:













