Hofheim Mitte - Moderne Bürofläche mit ca. 172 m²
Beschreibung:
Provisionsfrei für den Mieter!Ihre neue, hochwertig ausgestattete Büroetage befindet sich in optimaler Lage im Gewerbegebiet Nord in Hofheim. Hier steht das sehr gepflegte und moderne Bürohaus. Das repräsentative Treppenhaus mit Aufzug zollt dem hochwertigen Publikum von Steuerberatern, Anwälten, IT-Betrieben etc.
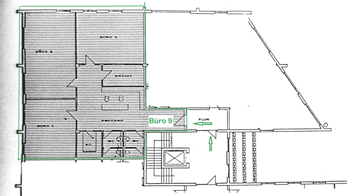
Das zu vermietende Büro mit ca. 172 m², 3 großen Büroräumen und riesigem Flurbereich (aktuell Empfang) sowie einem klimatisierten Serverraum mit Arciv befindet sich im 1. OG und bietet über den Aufzug auch barrierefreien Zugang. Moderne sanitäre Anlagen sowie eine Teeküche sind selbstverständlich. Das Inventar der Teeküche und weiteres Mobiliar können ggf. vom Vormieter übernommen werden. Die Fenster sind von außen verspiegelt und halten somit die Sonnenwärme ab. Die Büroräume sind mit Kabelschächten im Hohlfußboden und strapazierfähigem Teppichboden ausgestattet.
Parken können sie direkt in der Tiefgarage, wo 2 Plätze zu je 70 € dieser Büroetage zugeordnet sind.
Gesamtkaltmiete also 1.634 + 160 € für die 4 TG-Plätze = 1.794 € zzgl. Nebenkosten-Vorauszahlung mtl. 300 €.
Alle Preisangaben in diesem Exposé jeweils zzgl. der gesetzlichen MwSt. von zurzeit 19%.
Verfügbar 01.04.2026 bzw. nach Absprache.
Mehr Informationen gewünscht? Rufen Sie mich an.
Gemeinsame Online Besichtigung:
Verschaffen Sie sich vorab ergänzend zu diesem Exposé ein noch besseres Raumgefühl und lassen Sie sich von mir online durch das Objekt führen. Zur Terminvereinbarung schreiben Sie mir über das Kontaktformular oder rufen mich an.
Dies ist eine ideale und intensive Vorab-Einstimmung auf das Objekt und hilft Ihnen bei der Entscheidung auf dem Weg zu einer realen Besichtigung vor Ort.
Lagebeschreibung:
Hofheim am Taunus - die Kernstadt und die sechs Stadtteile liegen einmalig idyllisch am Taunushang zwischen Frankfurt und Wiesbaden. Eine grüne Insel zum Leben, Wohnen und Arbeiten in der Mitte des Rhein-Main-Gebietes.Die Innenstädte von Frankfurt am Main, Wiesbaden und Mainz sind nur rund 20 Kilometer entfernt. Die Anbindung an das überregionale Verkehrsnetz ist äußerst günstig.
Verkehrsanbindung:
Anschlüsse an die A 66 (Wiesbaden - Frankfurt)
S-Bahn-Anschluss nach Frankfurt.
Regional- und Stadtexpress-Haltepunkt
Busverbindungen der Main-Taunus-Verkehrsgesellschaft (MTV), Stadtbuslinien "Hofemer"
circa 12 Kilometer zum Flughafen Rhein-Main
Hofheim ist zugleich eine Stadt im Grünen. Die weiten Wälder und eine Höhe von 120 bis 410 Meter über dem Meeresspiegel sorgen für ein günstiges Klima.
Ausstattung:
Energieausweis:
- A+
- A
- B
- C
- D
- E
- F
- G
- H
- Baujahr:
- 1996
- Endenergieverbrauch:
- 85,6 kWh/(m²a)
- Energieausweis:
- Verbrauchsausweis
- Energieeffizienzklasse:
- C
- Energieausweis gültig bis:
- 12.05.2030
- wesentlicher Energieträger:
- Gas
- Baujahr lt. Energieausweis:
- 1996
Sonstige Angaben:
Gerne führen wir gemeinsam mit Ihnen eine Besichtigung durch und stehen Ihnen mit weiteren Informationen jederzeit zur Verfügung.Für die in diesem Exposé gemachten Angaben können wir leider keine Haftung übernehmen, da diese auf den Angaben der Eigentümer/von Dritten beruhen.
Provisionsfrei für den Mieter!
Dieses Angebot ist ausschließlich für Sie bestimmt, eine Weitergabe bedarf der vorhergehenden Zustimmung durch uns und löst anderenfalls eine Provisionsverpflichtung aus.
Änderungen der Bedingungen und anderweitige Verwertung behält sich der Eigentümer jederzeit vor.
Sie wollen mehr erfahren?
Wenn Sie uns eine Nachricht über das Kontaktformular senden, melden wir uns schnellstmöglich bei Ihnen:

























