RESERVIERT! moderne Bürofläche mit wohnlichem Charakter - Balkon, Küche, Bad und Sauna ca. 96 m²
Beschreibung:
Büro/Gewerbe/PraxisSie suchen ein neues Büro an einem attraktiven Standort? Sie lieben die zentrale Lage von Flörsheim-Weilbach, mitten im Main-Taunus-Kreis und trotzdem im Grünen?
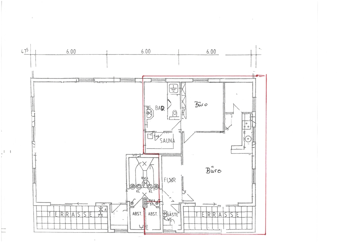
All das bietet Ihnen diese ca. 96 m² große Bürofläche mit Wohncharakter. Ein wunderschöner Südbalkon, ein ca. 36 m² großer Büroraum mit integrierter L-Küche, eine weiterer Büro/Besprechungs/- oder Relax Raum, ein Abstell- oder Kopierraum und als Krönung ein großes Duschbad mit Toilette und Sauna!
Weiterhin gibt es noch einen Vorflur mit Garderobenbereich, ein Besucher WC sowie einen abschließbaren Abstellraum als Kellerersatz.
Ein Außenstellplatz für Ihren PKW gehört dazu– auf Wunsch auch zwei für jeweils 40,00 € mtl..
Das Büro erreiche Sie über die Treppe im 2. OG.
Ale Preisangaben zum Objekt zzgl. 19% Mwst
Weitere Details erfahren Sie gerne am Telefon oder bei einem Besichtigungstermin. Rufen Sie mich einfach an.
Lagebeschreibung:
Weilbach ist der nördlichste Stadtteil von Flörsheim am Main. Der Ort liegt verkehrsgünstig und verfügt über einen eigenen Anschluss an die Autobahn A 66 und ist infrastrukturell gut erschlossen. Vor Ort gibt es zwei Kindertagesstätten und eine Grundschule mit angegliederter Schulkinderbetreuung sowie viele Einkaufsmöglichkeiten. REWE und PENNY ereichen Sie in 2 Minuten zu Fuß.S-Bahn Anschluss S2 FFM-Wiesbaden in 600 m Entfernung.
Die nächstgelegene Stadt ist nach Norden mit nur 3 km Entfernung Hofheim am Taunus, nach Süden Flörsheim am Main.
Sehenswert sind der Ortskern mit seinen restaurierten Fachwerkhäusern und dem Weilbacher Glockenspiel, das regelmäßig in Aktion tritt. Ein bedeutendes historisches Bauwerk ist das sogenannte Weilbacher Schloss.
Für Naturfreunde ist ein Besuch in den rekultivierten Kiesgruben empfehlenswert. Vom im Jahr 2012 errichteten Regionalparkturm bietet sich ein grandioses Panorama.
Ausstattung:
Energieausweis:
- A+
- A
- B
- C
- D
- E
- F
- G
- H
- Baujahr:
- 1996
- Endenergieverbrauch:
- 88 kWh/(m²a)
- Energieausweis:
- Verbrauchsausweis
- Energieeffizienzklasse:
- C
- Energieausweis gültig bis:
- 23.10.2028
- wesentlicher Energieträger:
- Gas
Ausstattungsbeschreibung:
Das Objekt wird gerade noch renoviert.Bezugstermin Anfang 2026 bzw. nach Absprache.
Sonstige Angaben:
Gerne führen wir gemeinsam mit Ihnen eine Besichtigung durch und stehen Ihnen mit weiteren Informationen jederzeit zur Verfügung.Für die in diesem Exposé gemachten Angaben können wir leider keine Haftung übernehmen, da diese auf den Angaben der Eigentümer/von Dritten beruhen.
Gewerbliche Vermietungen sind mit 3,57 Monatsmieten incl. MwSt. zu vergüten.
Dieses Angebot ist ausschließlich für Sie bestimmt, eine Weitergabe bedarf der vorhergehenden Zustimmung durch uns und löst anderenfalls eine Provisionsverpflichtung aus.
Änderungen der Bedingungen und anderweitige Verwertung behält sich der Eigentümer jederzeit vor.
Weitere Angebote finden Sie auf www.remax.de
Sie wollen mehr erfahren?
Wenn Sie uns eine Nachricht über das Kontaktformular senden, melden wir uns schnellstmöglich bei Ihnen: