Arztpraxis oder Büroflächen mitten in der City
Beschreibung:
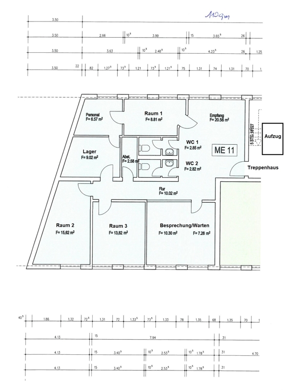
Herzlich willkommen in den City Arkaden in Königstein. Hier finden Sie Ärzte, einen Friseur, REMAX Immobilien, eine Kochschule/Feinkostgeschäft, Therapieräume sowie ein "HAIRFREE" Institut. Direkt hinter dem Gebäude befindet sich eine große Parkfläche (gebührenpflichtig) sowie einem Parkdeck im UG für die Mieter.Im 2. OG des Hauptgebäudes liegt diese angenehm dimensionierte Praxis- oder Bürofläche, die Sie bequem per Lift erreichen. Die 110 m² sind derzeit in 5 Räume, einen Empfang, ein Lager, einen Abstellraum und eine WC Anlage aufgeteilt.
Gerne stehen wir Ihnen für eine Besichtigung und der Erörterung von Optionen für diese wirklich schöne Gewerbefläche zur Verfügung. Erstbesichtigung erfolgt virtuell. Die Verwaltung der Immobilie wünscht übrigens keine direkte Kommunikation!
Lagebeschreibung:
Die Stadt Königstein im Taunus ist ein heilklimatischer Kurort im Hochtaunuskreis in Hessen und liegt an den waldreichen Hängen des Taunus im Umland der Stadt Frankfurt am Main im Rhein-Main-Gebiet. Königstein grenzt im Norden an Schmitten, im Osten an Kronberg , Oberursel und Schwalbach am Taunus, im Süden an Bad Soden und Kelkheim, sowie im Westen an die Gemeinde Glashütten. Königstein liegt für Autofahrer verkehrsgünstig. Über die Bundesstraße 8 und B 455, die sich hier in einem Kreisel schneiden, erreicht man in wenigen Minuten die Bundesautobahn 66 (Anschlussstelle Frankfurt-Höchst), A 661 (Anschlussstelle Oberursel) und A 3 (Anschlussstelle Niedernhausen). Auch mit dem ÖPNV sind Sie in Königstein gut angebunden.Königstein im Taunus (ca. 16.600 Einwohner) ist wie die Nachbarstadt Kronberg im Taunus für seine bevorzugten und teuren Wohnlagen bekannt. Zudem wies die Stadt Königstein im Taunus im Jahr 2020 einen weit überdurchschnittlichen Kaufkraftindex von 203,8 Prozent des Bundesdurchschnitts auf und belegt damit einen bundesweiten Spitzenwert. Die beiden Kurorte Königstein und Falkenstein bilden seit Kurzem ein Eingangsportal zum ersten Heilklimapark Deutschlands. Von hier aus gehen zahlreiche Wanderwege in die Wälder rund um Falkenstein bis hinauf zu den Höhen von Altkönig und Großem Feldberg (880 m ü. NN).
In Königstein gibt es ein großes Bildungsangebot. Sämtliche Schulformen sind vertreten und der Weg zur International School ist nicht weit.
Die schöne historische Innenstadt lädt zum Bummeln ein und viele Lokale warten auf Ihren Besuch. Die Immobilie liegt mitten im Zentrum.
3D Rundgang:
3D RundgangAusstattung:
Energieausweis:
- A+
- A
- B
- C
- D
- E
- F
- G
- H
- Baujahr:
- 1985
- Endenergieverbrauch:
- 169,6 kWh/(m²a)
- Energieausweis:
- Verbrauchsausweis Gewerbe
- Energieausweis gültig bis:
- 29.06.2032
- wesentlicher Energieträger:
- Gas
- Baujahr lt. Energieausweis:
- 1985
Ausstattungsbeschreibung:
- Gute Lage mitten in Königstein in einem ruhigen Atriumgebäude- Im Haus befinden sich mehrere Ärzte
- Im 2. OG mit Lift, Parkfläche hinter dem Haus
- Böden Kunststoff, in den WCs Fliesen
- Der Vormieter hat eine Alarmanlage installiert
- Miete + NK werden zzgl. MwSt. erhoben
- Erste Besichtigung nur virtuell
Sonstige Angaben:
Wir bearbeiten diese Vermietung im Alleinauftrag. Darum kontakten Sie bitte ausschließlich uns. Gerne führen wir gemeinsam mit Ihnen eine Besichtigung durch und stehen Ihnen mit weiteren Informationen jederzeit zur Verfügung.Für die in diesem Exposé gemachten Angaben können wir leider keine Haftung übernehmen, da sie auf den Angaben der Eigentümer/von Dritten beruhen.
Gewerbliche Vermietungen sind mit 1,785 Monatsmieten inkl. MwSt. zu vergüten.
Dieses Angebot ist ausschließlich für Sie bestimmt, eine Weitergabe bedarf der vorhergehenden Zustimmung durch uns und löst anderenfalls eine Provisionsverpflichtung aus.
Änderungen der Bedingungen und anderweitige Verwertung behält sich der Eigentümer jederzeit vor.
Sie wollen mehr erfahren?
Wenn Sie uns eine Nachricht über das Kontaktformular senden, melden wir uns schnellstmöglich bei Ihnen:





